原田家の主屋
狩浜地区で唯一の社家(=特定の神社に代々世襲で仕え、神職や祭祀を司ってきた家柄)の主屋です。
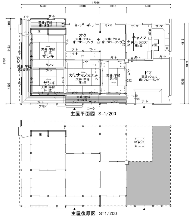
明治元年の築と伝えられ、木造平屋建、入母屋造、桟瓦葺で、市道宮の下線沿いの敷地に東面して建ち、敷地内に独立した蔵を配します。続き座敷四間取り、廻縁、書院など、明治期の一般層宅では見られない建築的要素を備えるなど、社家の屋敷構えを伝える観点で重要な建物です。
秋の祭礼時には、当家で直会が行われるほか、当日朝の巫女の着付け直しにも使用されます。
1980年代頃までは「宮下旅館」という看板を掲げ、宿泊先や仕出し料理店として地区内外から親しまれていました。
参考 『西予市文化的景観調査成果報告書』(西予市教育委員会,2018)p.67、p.79
門構え
春日神社へ続く階段から撮影
この記事に関するお問い合わせ先
まなび推進課
愛媛県西予市宇和町卯之町三丁目434番地1
電話:0894-62-6415
ファックス番号: 0894-62-6564



更新日:2026年01月19日